Noticias del mes de diciembre de 2018
La Lotería de Navidad siempre nos deja historias bonitas para contar. Este sorteo no ha sido una excepción ya que el empeño de un padre por jugar la fecha de nacimiento de su hijo (el 04.211) le ha hecho ganar 450.000 euros en la Lotería de Navidad, según ha explicado a Hortanoticias Fran Sanchis, uno de […]
El regidor de Cultura Festiva i president de Junta Central Fallera, Pere Fuset, acompanyat per la Fallera Major de València, Marina Civera Moreno, han presentat este divendres de matí les novetats del Museu Faller. «Hem posat en marxa una sèrie de millores mitjançant les quals volem consolidar este lloc històric a l'altura d'una festa considerada […]
El Ayuntamiento, a través de la concejalía de Gobierno Interior, dirigida por Sergi Campillo, ha iniciado las obras de rehabilitación y acondicionamiento del chalet municipal situado en la calle de Aben Al Abbar, que forma parte de los edificios incorporados al Plan de Intervención en Edificios Municipales de Valor Patrimonial iniciado por el Área de […]
La comarca de l’Horta ha resultado especialmente agraciada en el Sorteo de Navidad de la Lotería Nacional celebrado este 22 de diciembre. En total, entre los décimos vendidos en las administraciones del área metropolitana y la suerte de alguno de sus vecinos, la fortuna ha dejado más de 10,1 millones de euros en la comarca. […]
Tras la apertura al público del Parc Central el pasado lunes, en pocos meses se incorporarán al conjunto las Naves de Ribes 2 y 3, tras el proceso de habilitación al que están siendo sometidas, con lo que la funcionalidad del Parc se ampliará también a usos culturales y de formación. El alcalde ha visitado […]
La Concejalía de Movilidad Sostenible ha puesto este viernes en funcionamiento dos de los carriles bici realizados en función de los resultados de los presupuestos participativos DecidimVLC 2017, cuyas obras comenzaron el pasado mes de septiembre. Se trata, por un lado, del eje de 1.305 metros de las calles Vicente Sancho Tello - Jerónimo de […]
Lotería Manises, una de las administraciones que más premios ha dado en los últimos años, ha vuelto a traer la suerte a la comarca de l'Horta al repartir aproximadamente un millón de euros al vender parte del Gordo, parte de un tercer premio y parte un quinto premio. Curiosamente, la administración de Manises ha vendido […]
El concursante de Foios de la última edición del programa televisivo Masterchef, Toni Carceller, ha sido uno de los vecinos agraciados con el quinto premio de la lotería del Sorteo de Navidad que han vendido en la localidad de l’Horta Nord la asociación Filles de Maria, el 47.862. Toni Carceller firmó una gran participación en […]
El último premio importante en salir en el Sorteo de Navidad ha sido el tercer premio que ha recaído en el 04.211 y que se ha vendido en multitud de puntos de la geografía española. Entre ellos, Catarroja, Manises, Almàssera, Albal, Alfafar y Torrent donde se han repartido 1.450.000 euros en total. En concreto, la […]
Se ha hecho de rogar pero finalmente el premio Gordo de la Lotería de Navidad ha hecho acto de presencia pasadas las 12.30 horas y se ha dejado sentir en la comarca de l’Horta. Administraciones de Manises y Paterna han vendido el número agraciado, el 03.347. En Manises, la administración número 3, de la calle […]
Los empleados de una fábrica de muelles y resortes de Paiporta han resultado premiados con unos 1,4 millones del 21.015, segundo premio del Sorteo de Navidad vendido en la administración número 2 de Almansa (Albacete). Desde hace años un trabajador de la empresa compra números de este sorteo en Almansa y este año preguntó a […]
La administración doña Concha ubicada en el camino de Picanya de la ciudad de València ha vendido 100 décimos del segundo de los dos cuartos premios del Sorteo de Navidad de la Lotería Nacional, el 67.774. En total, ha repartido dos millones de euros gracias a este cuarto premio, el más importante de los que […]
El último quinto premio del Sorteo de Navidad de la Lotería Nacional, el 02308, ha sido vendido en la administración Lotería Manises de esta localidad de l’Horta Sud, una de las más afortunadas de España y la tercera de todo el país en número de ventas. Con este quinto premio ha repartido 60.000 euros gracias […]
El 67.774, un cuarto premio de la Lotería Nacional, ha caído en La Canyada y Xirivella. El cuarto premio supone 20.000 euros al décimo por lo que este 67.774 podría haber dejado 40.000 euros en estas dos localidades al ser vendidos por terminal y no por ventanilla. Este cuarto premio ha caído en la administración […]
El quinto premio del Sorteo de Navidad 29.031 ha estado muy repartido pero 30 series se han vendido en Mislata, un total de 1,8 millones de euros y, de ellos, cerca de 600.000 se han repartido entre la clientela de la peluquería Vergara Peluqueros del municipio, ubicada en la calle de Castella. Este pequeño negocio […]
En los últimos diez años, un número ha sido el gran protagonista del Sorteo de Navidad de la Lotería Nacional. De los diez ‘gordos’ de la última década, tres han acabado en ‘8’, sin duda, la terminación más afortunada pues el resto de terminaciones no se han repetido. Así, en 8 terminaron los primeros premios […]
En el Sorteo de Navidad del año pasado, muchas localidades de l’Horta repartieron premios entre sus vecinos. En total, la lluvia de millones dejó 10.850.000 euros en la comarca de los que 6 millones se concentraron en La Pobla de Farnals. Allí, la asociación de Amas de Casa fue la estrella de la Navidad entre […]
El 47.862 que ha caído en la administración número 1 de Foios, es un número habitual de esta administración, según ha confirmado el propietario de la administración 1 de Foios, Benjamín Félix, a Hortanoticias. El lotero de Foios explicó que "este es un número que jugamos durante el año, al que estamos abonados todo el […]
Un minuto después de las 10 de la mañana, los niños de San Ildefonso cantaban otro quinto premio del Sorteo de Navidad, el cuarto de la mañana. El número 29.031 ha sido vendido en numerosas provincias españolas y también ha repartido suerte en las localidades de Mislata, Xirivella, Alcàsser y Alaquàs. En concreto, en Mislata […]
El sorteo de la Lotería de Navidad ha comenzado y la suerte ha madrugado para llegar a Foios y a Valencia donde ha caído un quinto premio. Y les Filles de Maria han sido las encargadas de inundar de Foios de papeletas que repartirán 300 euros por cada euro jugado y que han repartido 54 […]
La portavoz socialista en el Ayuntamiento de València, Sandra Gómez, ha sido intervenida hoy por espacio de casi cuatro horas de la mano que resultó dañada por el ataque de dos perros de la raza American Stanford el pasado domingo, cuando la primera teniente de alcalde corría por la playa junto a su perro Pep. […]
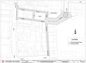
El Concejal de Desarrollo Urbano, Vicent Sarrià, ha anunciado la futura peatonalización del entorno del Mercado Municipal de la plaza San Pedro Nolasco. El objetivo del proyecto, que ha sido aprobada en la Junta de Gobierno de hoy, es mejorar la movilidad, la accesibilidad y la vertebración peatonal del barrio de Morvedre a través de […]
El Institut Valencià de Cultura y la Asociación València de Cine organizan el festival itinerante La Ruta Más Corta, que se celebra este año en el barrio de Patraix el sábado 22 de diciembre, con el apoyo del Ayuntamiento de València y el patrocinio de la empresa Subtitula'm. Esta ruta de cortometrajes valencianos contará con […]
La Mancomunidad Intermunicipal Barrio del Cristo, Aldaia-Quart de Poblet, ha incluido en el presupuesto para 2019 la construcción de un nuevo parque, que estará ubicado en sedas parcelas existentes en la calle Arnau de Vilanova, esquina con calle Nueva, en término municipal de Quart de Poblet. Su superficie es de 1.673,64 metros cuadrados. Con esta […]
El PP de Paiporta solicita a Ferrocarrils de la Generalitat Valenciana (FGV) medidas urgentes para mejorar la seguridad en la estación de Paiporta, tras la actuación realizada que sólo consiste en el vallado de la estación, por lo que el paso queda limitado a los usuarios del metro. Las últimas obras no han evitado ninguno […]
El Ayuntamiento de Paterna ha comenzado la redacción del Plan de Seguridad Integral y de Emergencias del polígono industrial Fuente del Jarro. El alcalde de Paterna, Juan Antonio Sagredo, ha explicado que este documento, a cuya redacción el consistorio ha destinado 15.000 euros, junto con el resto de planes de seguridad que están elaborando desde […]
La portavoz de Ciudadanos (Cs) en la Diputación, Mamen Peris, ha explicado que “Cs ha votado en contra de los presupuestos de la Diputación para 2019 porque se han hecho sin diálogo ni consenso”. “El proyecto del gobierno se debería haber entregado en octubre para que los grupos políticos de la oposición los pudiéramos haber […]
La portavoz del Partido Popular en la Diputación de Valencia, Mari Carmen Contelles, ha asegurado que el presupuesto diseñado por el equipo de Gobierno que dirige Toni Gaspar “es un presupuesto elaborado desde la desgana de un gobierno que se sabe agotado, sin ideas, sin proyecto y sin capacidad de maniobra, a merced de las […]
El Ayuntamiento de Torrent apuesta por potenciar la compra en los mercados ambulantes de la ciudad y, por este motivo, a lo largo de la mañana de hoy se ha realizado una jornada de empaquetado de regalos. De manera gratuita, los torrentinos y torrentinas que han realizado las compras navideñas en el Antic Mercat han podido llevarse a […]
Aigües de l’Horta ha firmado un convenio con el Economato de la Mare de Deu del Pópul de Torrent, gestionado a través de la Acción Social de Cáritas, con el objetivo de colaborar con las cestas navideñas que se reparten anualmente a las familias en riesgo de exclusión de Torrent. Salvador Santamaría, gerente de Aigües […]
Los torrentinos han vuelto a demostrar su solidaridad en la recogida de alimentos que el Ayuntamiento de Torrent, con la colaboración de la empresa Consum, organizó recientemente. En total se han alcanzado alrededor de 1.000 kilos, que serán repartidos entre los que más lo necesitan, a través del Punto de Alimentos. Desde primera hora de la […]
La Concejalía de Igualdad y Políticas Inclusivas del Ayuntamiento de València ha presentado este viernes el inicio de una nueva campaña en contra de las agresiones sexuales en espacios de ocio como bares, festivales y discotecas, bajo el lema "Hay comportamientos que están fuera de lugar". Según ha informado el Ayuntamiento, la campaña se llama […]
Con la llegada de la Navidad, la concejalía de Cultura Festiva volverá a llevar a Caterina a recorrer los barrios y pueblos de València con el buzón real. La mensajera de los Reyes Magos de Oriente, acompañada de sus ayudantes, se encargará de que las cartas de los niños y niñas que se han portado […]
Fundación Aquae, la fundación de Hidraqua, lanza su primer Aquae Campus en formato exclusivamente online bajo el eje temático Innovación & Inspiración. Expertos de proyección internacional comparten en este campus online sus ideas y proyectos transformadores. Entre ellos, la editora y escritora neoyorquina Valerie Miles, cuya master class se grabó en la Universidad Miguel Hernández […]
El Ayuntamiento de Alboraya lanza junto a su campaña de Navidad 'Nadal a Alboraia' un cortometraje donde la horchata y los fartons son los protagonistas junto con una divertida historia donde la Policía Local de Alboraya salva las fiestas navideñas del Grinch. La primera parte del corto se puede ver a través del canal de […]
El concejal de Desarrollo Urbano del Ayuntamiento de València, Vicent Sarrià, ha anunciado esta mañana el fin de las obras de la plaza Rojas Clemente y su apertura a lo largo del día de hoy. El edil socialista ha explicado que “esta es una de las muchas actuaciones que estamos llevando a cabo en la […]

















































