El Museo de Bellas Artes de València ganará espacio con el derribo del muro y una entrada desde Viveros

0
109 lecturas

La vicealcaldesa y concejala de Desarrollo y Renovación Urbana, Sandra Gómez, ha mantenido una reunión con el director del Museo de Bellas Artes, Pablo González, a quien le ha trasladado los avances en el cambio de planeamiento y el desarrollo de la reurbanización, que permitirá derribar el muro perimetral para ganar espacio público y que la pinacoteca añada una entrada desde Viveros.

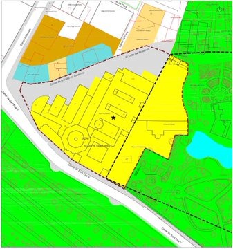
Gómez ha recordado que ya se ha aprobado el cambio de planeamiento que permite desbloquear el proyecto que prevé derribar el muro recayente a la parte trasera del museo, en la senda del Rossinyol, que ganará todo el espacio público hasta la fachada del edificio.

“Estamos avanzando en la regeneración de una de las principales pinacotecas de España y gracias a este proyecto contará un entorno que merece, con nuevos espacios públicos y peatonales, zonas verdes y edificios protegidos”, ha resaltado.

El suelo que propone el proyecto del gobierno central como nuevo límite del museo con la ampliación que recae sobre Viveros pasará a clasificarse como educativo-cultural, mientras que el espacio ganado entre el muro y el edificio pasará a ostentar la calificación de red viaria. Esto permitirá realizar la correspondiente permuta de terrenos entre el ministerio y el Ayuntamiento.

Por otra parte, el PEP-EBIC establece protección para el museo y los Jardines de Viveros. Concretamente, para el Museo de Bellas Artes se establece el nivel de Bien de Interés Cultural (BIC) en la categoría de monumento. Para el Jardín de Viveros, se establece un nivel de protección BIC como jardín histórico de relevancia local.

DEJA UNA RESPUESTA

Por favor ingrese su comentario!
Por favor ingrese su nombre aquí