L’Ajuntament de Manises ha presentat el projecte de reforma i rehabilitació de l’antic edifici Sensey, situat a la Plaça Vicente Barberá, amb l’objectiu de convertir-lo en un espai modern, accessible i sostenible dedicat a la joventut i destinat a activitats culturals, socials i formatives.
El projecte contempla una reforma integral de l’immoble, actualment sense ús i amb signes de deterioració. L’actuació inclourà una redistribució completa de l’interior, la renovació de totes les instal·lacions i l’adequació de l’edifici a les normatives actuals en matèria d’accessibilitat, eficiència energètica i seguretat.
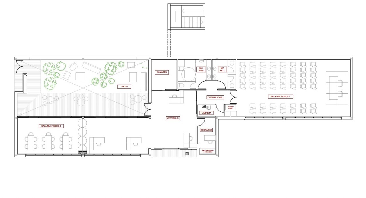
L’edifici, de 244,96 m² construïts, comptarà amb dues sales multiusos, un vestíbul amb zona d’atenció, despatx de coordinació, magatzem, lavabos adaptats i un pati interior de més de 85 m² que s’habilitarà com a espai a l’aire lliure per a l’ús dels i les joves del municipi.
D’altra banda, l’actuació permetrà també obrir l’edifici cap a la plaça, fomentant la seua integració amb l’entorn urbà i revitalitzant aquest espai públic. L’accés principal se situarà en el costat sud, amb una nova façana més oberta i lluminosa.
Les obres estan previstes que s’inicien al llarg de 2026, una vegada completats els processos administratius i de licitació.
Segons el regidor d’Urbanisme de l’Ajuntament de Manises, Guillermo Martínez: “Transformem un edifici en ruïnes en un nou centre juvenil que donarà un impuls al compromís que vàrem signar amb la joventut de Manises després de l’aprovació del Pla Jove la darrera legislatura. Disposarà de dos grans sales polivalents i un pati interior per a realitzar activitats”.
Per la seua part la regidora de Joventut de l’Ajuntament de Manises, Clara Arnal, ha valorat la iniciativa com “un pas molt important per a oferir als joves de Manises un lloc on puguen reunir-se, formar-se i desenvolupar les seues inquietuds culturals i socials en un entorn adaptat a les seues necessitas”.
La regidora ha afegit: “Volem que aquest espai dedicat a la joventut siga un referent de participació, creativitat i convivència, un lloc fet per i per als i les joves de Manises”.




















